04509 Delitzsch

Kompakte Gewerbeeinheit in zentraler Lage von Delitzsch

Objekt-Nr.: Objekt 1114

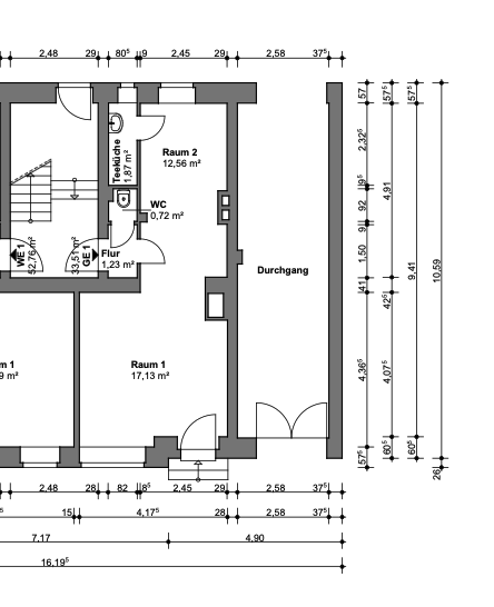
Zum Verkauf steht eine gepflegte Gewerbeeinheit im Erdgeschoss eines Wohn- und Geschäftshauses in Delitzsch. Die Einheit eignet sich ideal als Ladenfläche, Büro oder Praxis und befindet sich in einem guten, gepflegten Zustand.

Aktuell ist die Einheit vermietet und erzielt eine monatliche Kaltmiete von 250 €, was einer Rendite von rund 8 % entspricht. Damit bietet sie sich sowohl als attraktive Kapitalanlage mit solider Ertragsbasis als auch für den Eigennutz an – beispielsweise für Selbstständige oder Kleinunternehmer, die eine repräsentative Gewerbefläche in zentraler Lage suchen.

Im Kellergeschoss stehen zudem Abstellräume sowie ein Heizungsraum zur Verfügung. Die Beheizung erfolgt über eine Gas-Etagenheizung.

Objektdaten

Preise

Kaufpreis37.500 €

Lage

04509 Delitzsch

Die Stadt Delitzsch mit rund 25.000 Einwohnern liegt im Nordwesten von Leipzig und verfügt über eine sehr gute wirtschaftliche Entwicklung sowie eine attraktive Infrastruktur für Gewerbetreibende und Dienstleister.

Die angebotene Gewerbeeinheit befindet sich in zentraler Lage an einer der Hauptverkehrsstraßen von Delitzsch und profitiert dadurch von einer sehr guten Sichtbarkeit und hoher Kundenfrequenz. Eine Bushaltestelle liegt nur wenige Meter entfernt, die S-Bahn-Station „Delitzsch Nord“ ist in etwa 10 Minuten fußläufig erreichbar und bietet eine direkte Verbindung nach Leipzig – ideal für Mitarbeiter und Kunden gleichermaßen.

Dank der Autobahnen A9, A14 sowie der Bundesstraße B2 ist der Standort zudem verkehrstechnisch optimal angebunden, sowohl für den regionalen als auch den überregionalen Verkehr.

Objektdaten

Bürofläche
Hiding element with ID: built_year
3 Zimmer

Energieausweis A+

Wohnfläche (ca.)

Hiding element with ID: property_wohnflaeche
0

Grundstücksfläche (ca.)

Hiding element with ID: property_grundflaeche
0

Nutzfläche (ca.)

Hiding element with ID: property_nutzflaeche
0

Provision

Die Käuferprovision beträgt 3,57 % inkl. gesetzlicher MwSt. des Kaufpreises.

Kaufpreis/m2

2343 €

Kaufpreis

37.500

Ansprechpartner

Maximo Kiefer

Ihr Ansprechpartner Verkauf

Ich bin jederzeit für Sie da

Gib hier deine Überschrift ein

Ein Immobilienverkauf ist Vertrauenssache – und das entsteht nur in engem persönlichem Austausch. Daher begleite ich Sie als Immobilienmakler vom ersten Kennenlernen bis zur Schlüsselübergabe.

Jetzt einfach Finanzierung berechnen

Mit diesem Baufinanzierungsrechner können Sie online Ihre Baufinanzierung berechnen. Anhand Ihrer Vorgaben ermittelt der Rechner folgende Werte:

  • die Höhe der monatlichen Rate (Annuität),
  • eine unverbindliche Zinsindikation,
  • die Summe der über die gesamte Darlehenslaufzeit bezahlten Zinsen,
  • und einen detaillierten Tilgungsplan mit Ausweis von Zins- und Tilgungsanteilen.

Gib hier deine Überschrift ein

Kontakt

Schreiben Sie uns gern!

Stellen Sie Ihre Immobilienfragen und wir stehen Ihnen jederzeit für Ihre Ideen und Fragen zur Verfügung!